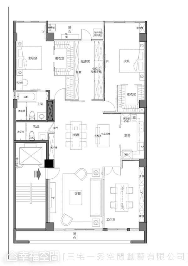
已然三十年以上屋齡的老屋,在郁琇琇設計師接手前歷經過一次裝修,卻有著風水對沖、格局尺寸不佳…等相關問題,而良好生活場域的規劃首重舒適地空間比例與流暢便宜的動線,三宅一秀空間創藝將客廳後的工作間開門轉向,而原位處相同場域的吧檯與廚房則獨立開來,並呼應工作間門片採清玻格柵拉門設計,保有穿透性與屏蔽油煙的機能。為使空間更顯完整放大,郁琇琇設計師運用大量對稱語彙,不僅將客浴門片隱身於餐櫃右方,也整合主臥房、女孩房與藏書間門片採一體性規劃,規整出方整開闊的公領域視野。

以美式古典出發的風格設計,屋主期待客廳電視牆具備大理石元素,三宅一秀除了滿足期待,並在地坪選以仿大理石地磚延伸紋理語彙,另採深金鋒大理石紋滾邊型塑場域獨立意象,更添精緻度。主臥房中延續公共空間晶澤細膩的壁紙元素,搭配特調百合白漆色線板鋪陳古典唯美氛圍,而喜愛簡約設計的女孩房則透過更衣室門片的幾何語彙彰顯現代感。
CASE DATA
- 居住成員:大人x2
- 裝潢費用:401萬 ~499萬
- 房屋坪數:42坪
- 設計風格:美式古典
- 房屋類型:標準格局
- 房屋狀況:老屋翻新
- 圖片提供:三宅一秀空間創藝有限公司
- 空間格局:玄關、客廳、餐廳、廚房、主臥房、女孩房、藏書間、工作間
- 主要建材:帝諾石大理石、深金峰大理石、哥德廚具、進口壁紙、60cm*120cm彷大理石級拋光石英磚、百合白油性烤漆
石材紋理
由屋主指定的大理石電視牆紋理延伸,地坪處擇以相仿色澤紋理磁磚,應用先進的噴墨技術與精省預算達到空間規劃的一致性。
客廳
地毯下方也依照屋主所需,在圓形茶几下方安排相同造型地磚,可隨時變換居家氛圍。
餐廳
三宅一秀設計拉大餐櫃尺度並將客浴門片隱入對稱規劃的立面設計中,營造質感大器的餐敘氛圍。
餐廚區
吧檯呼應電視牆大理石材,獨立拉出廚房外與餐廳共同規劃,厚度僅十公分的精工語彙,使空間更見精緻俐落。
層遞視野
從客廳向內延伸的視野越過餐廳直抵雙推拉門後方的藏書間,型塑層遞堆疊的空間層次與綿延視野。
藏書間
屋主的大量藏書以雙層推拉式書櫃與清玻拉門櫃體完整收納,木皮櫃體與一目瞭然的收納方式,讓空氣中瀰漫雅致書香。
女孩房
喜愛簡約乾淨的女孩房中運用簡潔筆觸勾勒適宜生活比例,並透過軟件寢飾的搭配營造溫馨氛圍。
幾何元素
半穿透規劃的更衣室採幾何交錯的俐落語彙,突顯女孩房的現代感。
主臥房
古典線板床頭與唯美華麗的壁紙鋪陳,呈現主臥房浪漫古典情懷。
【延伸閱讀】

















留言評論